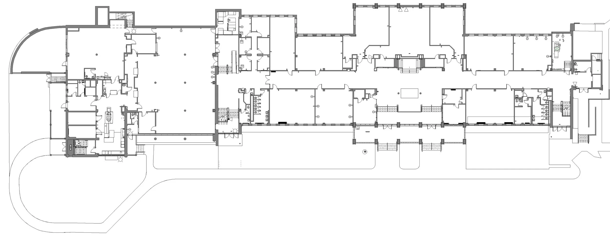
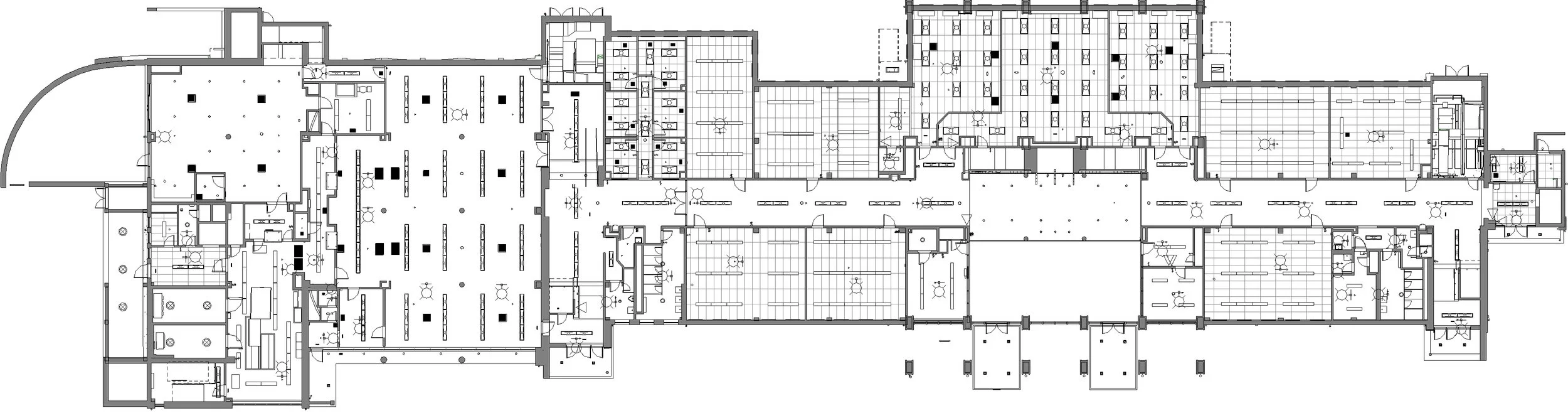
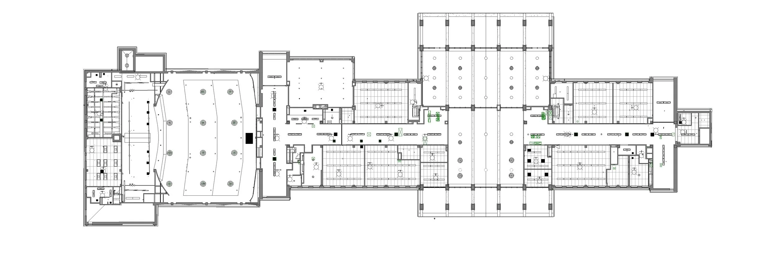
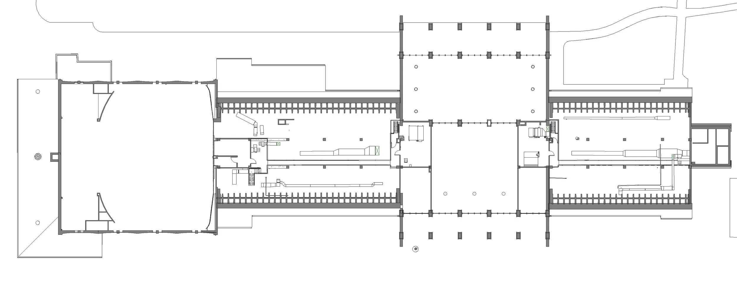
For the renovation of the Colorado Springs Charter Academy K-5 building, only original floor plans from 1965 were available to work with. Our team captured the entire 80,000 sq ft building, including mapping the roof with aerial LiDAR, and scanning low-height crawlspaces beneath the building. We then created a detailed model that includes structural components, MEP systems, and roof elements. This digital twin provides a reliable foundation for both near-term planning and long-term improvements.

