
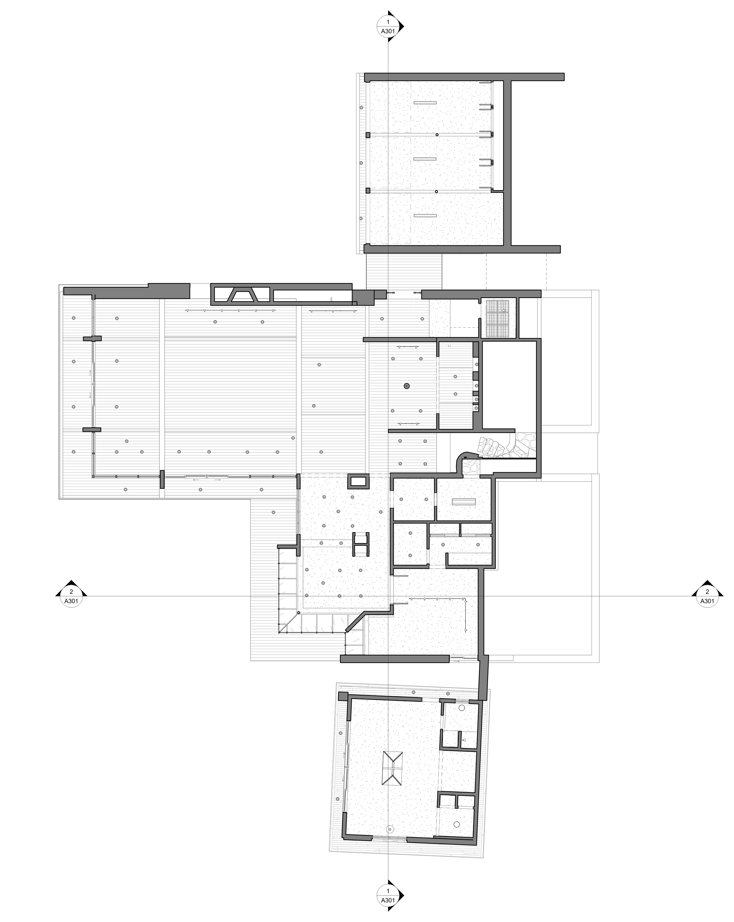
Using LiDAR (3D imaging), 3D Data Pro surveyed this Aspen, Colorado home’s 6,400 square foot interior to capture every detail, especially the interior pool and stone stairs. After processing the data into an architectural 3D model using industry standard BIM software and exporting 2D plans, sections, and elevations, our clients were able to quickly produce and share their renovation ideas. In addition to the model, we created a virtual 360 tour for designer, contractor, and client communication.















